Sold By
- Loading...
- Photos
- Description
House in Marshland
One Of A Kind Luxury Home
- 4 Beds
- 2 Baths
- 2 Cars
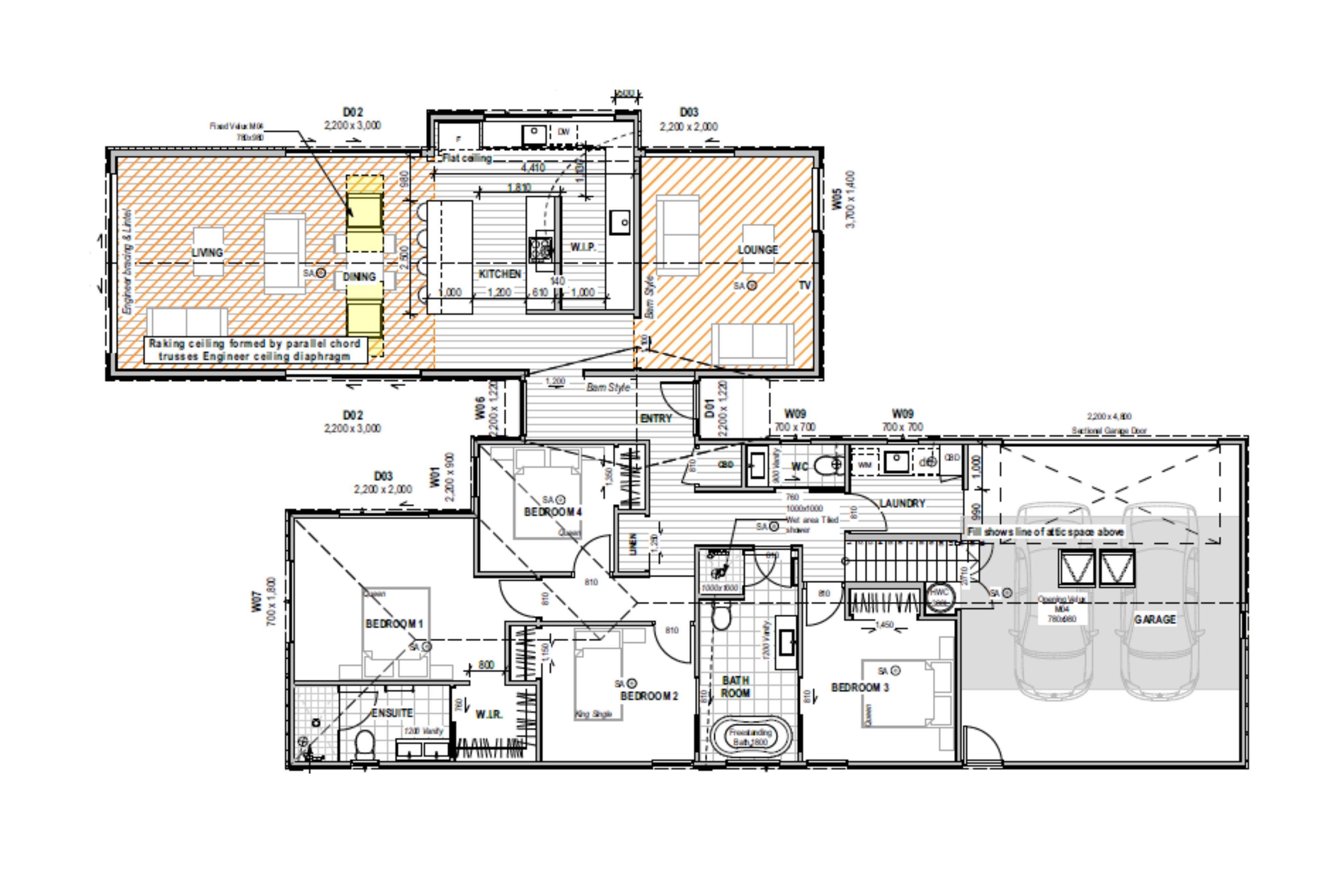
Designed with family living in mind, this brand-new one-of-a-kind home will no doubt appeal to those who appreciate quality, style and space. Don't delay, call Jiby today to secure this wonderful opportunity for your family - 022 417 9858.
Located in the highly desirable Prestons Park subdivision, you will want to be quick to secure this premium family home. Owning this home, you will benefit from the plethora of outdoor activities, being only a stone's throw away from the beautiful Travis Wetland Heritage Park and Bottle Lake Forest .
Appreciate the quality finishes and many extras that provide a luxurious standard of living throughout, including a well-appointed designer kitchen complete with adjoining walk-in pantry. The bright and spacious open plan living area flows seamlessly outdoors to a stunning alfresco dining area, the ultimate entertaining space. Complimented by a separate formal lounge, allowing ample room for the whole family to relax and unwind.
Your accommodation needs are taken care of with four double bedrooms. The Master bedroom offers a private sanctuary boasting a huge walk-in robe, a luxurious tiled ensuite with double shower, and his and hers vanity. The rest of the home is serviced by the tiled family bathroom with toilet, tiled shower and freestanding bath, and an additional separate toilet for added convenience.
Access the internal access double car garage through the dedicated laundry room. An added bonus is the attic space hidden away upstairs to utilize as you desire - a media room, bedroom, play room, the options are endless. This home will be finished to a high specification and is sure to excite.
- Living Rooms
- Open Plan Kitchen
- Designer Kitchen
- Separate Bathroom/s
- Separate WC/s
- Ensuite
- Double Garage
- Internal Access Garage
- City Views
- City Sewage
- Shops Nearby
See all features
- Light Fittings
- Dishwasher
- Rangehood
- Garage Door Opener
- Cooktop Oven
- Fixed Floor Coverings
MCN37889
546m² / 0.13 acres
2 garage spaces
4
2
